Elaboración de Presupuestos, PDT y Flujo de Caja
Elaboración de Presupuestos, PDT y Flujo de Caja Construcción Edificio Comercial 5 Pisos “Arequipe” Duitama
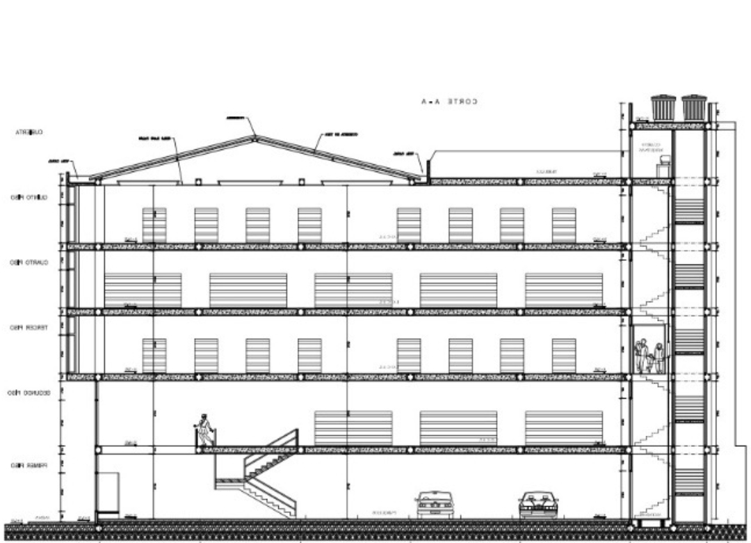
ClienteEdificio Comercial 5 Pisos "ArequipeUbicaciónDuitamaDesarrolloElaboración de Presupuestos, PDT y Flujo de CajaShare
