Portafolio de servicios
División ingeniería eléctrica
Construcciones eléctricas residenciales
ClienteMultifamiliar Loma lindaUbicaciónDuitamaDesarrolloDiseño y construcción de instalaciones eléctricas residenciales
Diseño eléctrico residencial, comercial e industrial
ClienteJusto y buenoUbicaciónDuitamaDesarrolloDiseño y construcción de instalaciones eléctricas e iluminación grandes superficies
Diseño y construcción eléctrica de EDS
ClienteEDS TexacoUbicaciónLa Estrella Km 8 vía Tunja - Cucaita / BoyacáDesarrolloDiseño y construcción eléctricas
Portafolio de servicios
Construcción de redes eléctricas
Redes de Media Tensión Aéreas
ClienteEdificio MadalaUbicaciónDuitamaDesarrolloDiseño y construcción Redes de Media tensión
Redes Baja Tensión Aéreas
ClienteCasa TrinidadUbicaciónDuitamaDesarrolloConstrucción Redes de aéreas de baja tensión
Redes Subterráneas
ClienteMultifamiliar Portal ÁlamosUbicaciónDuitamaDesarrolloDiseño y Construcción Redes de subterráneas de baja tensión
Portafolio de servicios
Diseño de iluminación
Escenarios Deportivos
ClienteCancha sintética Barrio Santa LuciaUbicaciónSanta Rosa de Viterbo – BoyacáDesarrolloDiseño y construcción Instalaciones eléctricas e iluminación
Grandes Superficies
ClienteJusto y bueno Calle 16UbicaciónDuitamaDesarrolloDiseño de iluminación
Auditorios y centros de eventos
ClienteCooperativa de transportes LOS HEROESUbicaciónDuitamaDesarrolloDiseño y construcción Instalaciones eléctricas e iluminación
Auditorios y centros de eventos
ClienteCentro de la culturaUbicaciónSocotá BoyacáDesarrolloDiseño de iluminación
Iluminación alumbrado parque público
ClienteParque Jorge Eliecer GaitánUbicaciónSocotá BoyacáDesarrolloDiseño de iluminación
Portafolio de servicios
Gestión de proyectos
Elaboración de Presupuestos, PDT y Flujo de Caja
ClienteLoginDesarrolloElaboración de Presupuestos, PDT y Flujo de Caja
Elaboración de Presupuestos, PDT y Flujo de Caja
ClienteLoginUbicaciónCancha deportiva multifuncional Vereda Los Medios PaipaDesarrolloElaboración de Presupuestos, PDT y Flujo de Caja
Elaboración de Presupuestos, PDT y Flujo de Caja
Clientezona Turística PaipaUbicaciónRio Chicamocha Vía Alterna zona Turística PaipaDesarrolloElaboración de Presupuestos, PDT y Flujo de Caja
Elaboración de Presupuestos, PDT y Flujo de Caja
ClienteNobsaUbicaciónCanal Venecia Proyecto Conexión Vial SogamosoDesarrolloElaboración de Presupuestos, PDT y Flujo de Caja
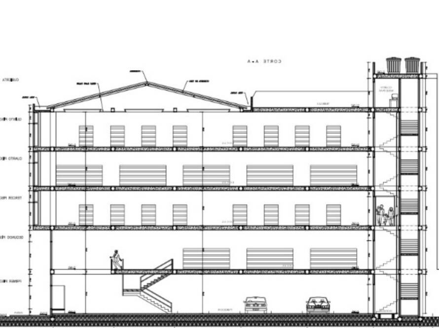
Elaboración de Presupuestos, PDT y Flujo de Caja
ClienteEdificio Comercial 5 Pisos "ArequipeUbicaciónDuitamaDesarrolloElaboración de Presupuestos, PDT y Flujo de Caja
Elaboración de Procedimientos Soldadura
ClienteMicrometroUbicaciónSogamosoDesarrolloElaboración de Procedimientos Soldadura
Asesoría e interventoría técnica
Supervisión técnica de obras


Mediciones eléctricas: Mediciones resistividad y puestas a tierra




